Bild für Immobilie-Unterseite

Attraktiv und provisionsfrei - vom Büro zum modernen Wohnen im Martiniviertel

Die Immobilie

Lage:
48143 Münster
Objektart:
Büroetage - Umwandlung zu Wohnraum
Wohnfläche:
306,66 m²
Zimmer:
3
Kaufpreis:
1.150.000 €
Objektnummer:
1156

Sonstige Kosten

Hausgeld:
1.145 €
Provision:
nein

Details

Baujahr:
1955
Bezugsfrei ab:
01.01.2026
Etagenzahl:
1
Etage:
1
Keller:
Ja

Energiedaten

Heizungsart:
Zentralheizung
Wesentlicher Energieträger:
Gas
Energieausweistyp:
Verbrauchsausweis
Energiebedarf:
201,70
Energieeffizienzklasse:
G

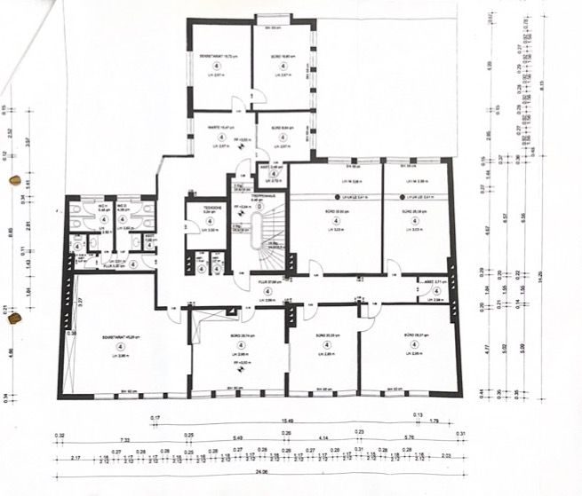
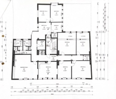
Beschreibung

Attraktive Möglichkeit zur Wohnraumschaffung im beliebten Martiniviertel!

In einem gemischt genutzten Mehrparteienhaus mit Wohn- und Gewerbeeinheiten bietet sich die seltene Gelegenheit, eine komplette Büroetage im ersten Obergeschoss ganz oder teilweise in hochwertigen Wohnraum umzuwandeln.

Zwei durchdachte Nutzungskonzepte wurden bereits im Vorfeld im Hinblick auf bauliche Machbarkeit geprüft:

Variante 1 – fünf Wohneinheiten:
Wohnung 1: 68,18 m²
Wohnung 2: 61,18 m²
Wohnung 3: 36,43 m²
Wohnung 4: 53,72 m²
Wohnung 5: 36,58 m²

Variante 2 – drei Wohnungen und ein Büro:
Wohnung 1: 33,19 m²
Wohnung 2: 41,62 m²
Wohnung 3: 29,94 m²
Bürofläche: 170,23 m²

Die Räumlichkeiten zeichnen sich durch überhohe Decken, zum Teil vorhandene Parkettböden und große Fensterfronten aus, die für eine helle und freundliche Atmosphäre sorgen. Diese architektonischen Qualitäten in Kombination mit der attraktiven Lage schaffen ideale Voraussetzungen für mode

Ausstattung

- Parkett-, Keramik und Vinylböden
- z.T. weiße Fenster mit Isolierverglasung
- z.T. Alufenster mit Isolierverglasung
- Kellerräume
- Gaszentralheizung

Lage

Das Objekt befindet sich im beliebten Martiniviertel. Die Innenstadt mit Prinzipalmarkt und Domplatz sind in wenigen Minuten zu Fuß erreichbar. Ebenso alle übrigen Einrichtungen für die tägliche Versorgung.

Die Promenade, die praktisch vor der Haustür liegt, lädt zum Picknick oder einem Spaziergang im Grünen ein.

Das unmittelbare Umfeld bietet ein reiches Gastronomieangebot.

Sonstiges

Das monatliche Hausgeld beträgt aktuell 1.145 €. Darin enthalten sind u.a. die Heiz- und Nebenkosten, sonstige Kosten und die Rücklagenbildung.

Ihre Ansprechpartnerin

Profilbild von Alexandra von der Goltz
Alexandra von der Goltz
Immobilienberaterin
Dipl.-Geogr., IHK-zertifiziert
Tel.: 0251 – 210 96 006
Mobil: 0170 – 86 323 96
Email: vondergoltz@von-der-goltz-immobilien.de
Ausstellungsbild für Immobilie
Ausstellungsbild für Immobilie
Ausstellungsbild für Immobilie
Ausstellungsbild für Immobilie
Ausstellungsbild für Immobilie
Ausstellungsbild für Immobilie
Ausstellungsbild für Immobilie
Ausstellungsbild für Immobilie
Ausstellungsbild für Immobilie

Eine Anfrage für diese Immobilie senden

* Pflichtfelder